FEATURED
Heritage Townhomes A1-A9
Juniper in Aspen Spring
Springbank Hill, Calgary
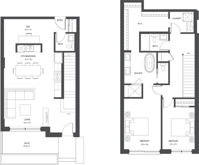
TH2 - End Unit
District Townhomes
West Springs, Calgary
Regent
Townhomes in Crown Park
Shaganappi, Calgary
Granville Mid Unit
West 83 Townhomes
TH2 - Interior Unit
TH1 - End Unit
Manhattan
Emerson Mid Unit
West 83 Townhomes Phase 2