hero-image-0

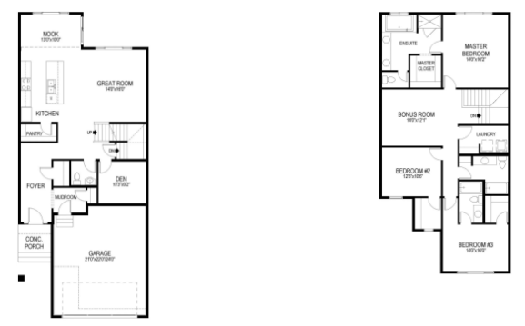
Macleod SSY 28 Plan

Encore West Grove Estates
Sold
Sold
3
2
1
From 2,504
unit-banner-imageunit-banner-imageunit-banner-image
Macleod SSY 28 Plan details
Macleod SSY 28 Plan is now sold.
Check out available nearby plans below.