hero-image-0

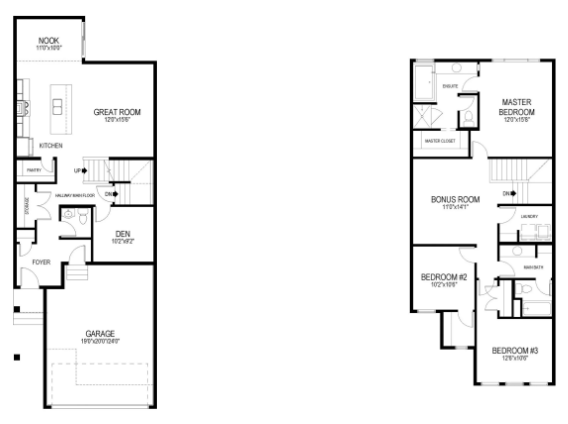
Macleod SSY 24 Plan

Encore West Grove Estates
Sold
Sold
3
2
1
From 2,143
unit-banner-imageunit-banner-imageunit-banner-image
Macleod SSY 24 Plan details
Macleod SSY 24 Plan is now sold.
Check out available nearby plans below.