hero-image-0

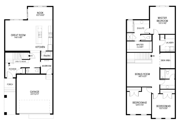
Bellevue SSY 26 Plan

Encore West Grove Estates
Sold
Sold
3
2
1
From 2,272
unit-banner-imageunit-banner-imageunit-banner-image
Bellevue SSY 26 Plan details
Bellevue SSY 26 Plan is now sold.
Check out available nearby plans below.