hero-image-0

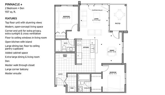
Pinnacle + Plan

Emerald Sky
Sold
Sold
2
2
1
From 937
unit-banner-imageunit-banner-imageunit-banner-image
Pinnacle + Plan details
Pinnacle + Plan is now sold.
Check out available nearby plans below.