hero-image-0

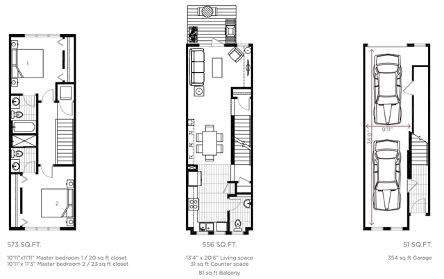
Scarlet Plan

Edison at Walden
Sold
Sold
2
2
1
From 1,180
unit-banner-imageunit-banner-imageunit-banner-image
Scarlet Plan details
Scarlet Plan is now sold.
Check out available nearby plans below.