hero-image-0

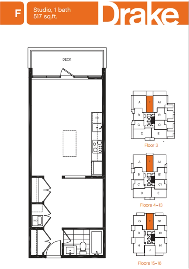
F Plan

By

Grosvenor

   |   

Drake

Drake
Sold
Sold
From 517
unit-banner-imageunit-banner-imageunit-banner-image
F Plan details
F Plan is now sold.
Check out available communities below.