hero-image-0

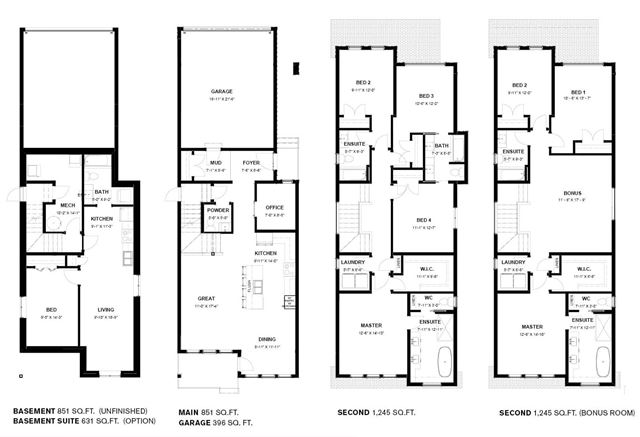
The Eastwood Plan

Copperstone at Copperfield
Sold
Sold
4
3
From 2,096
unit-banner-imageunit-banner-imageunit-banner-image
The Eastwood Plan details
The Eastwood Plan is now sold.
Check out available nearby plans below.

Interested? Receive updates

Stay informed with Livabl updates on new community details and available inventory.