hero-image-0

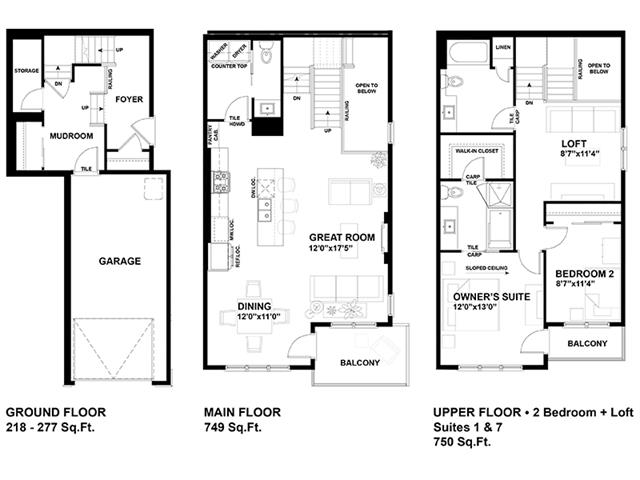
Allure Plan

By

Landmark Homes

   |   

Concepts

Concepts
Sold
Sold
2
2
From 1,744
unit-banner-imageunit-banner-imageunit-banner-image
Allure Plan details
Allure Plan is now sold.
Check out available nearby plans below.