hero-image-0

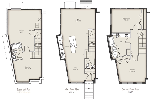
Manhattan Plan

Brownstones in Sage Meadows
Sold
Sold
2
2
1
From 1,270
unit-banner-imageunit-banner-imageunit-banner-image
Manhattan Plan details
Manhattan Plan is now sold.
Check out available nearby plans below.