hero-image-0

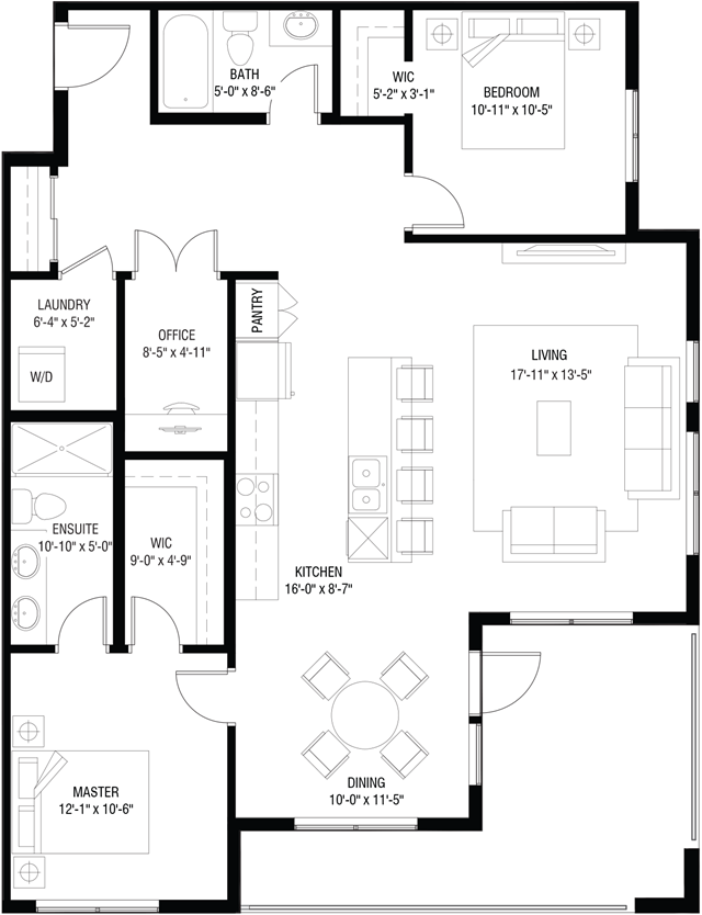
Unit 2414

Bow 360 - Building 2
For sale
For sale
2
2
1
1,254
Unit 2414 details
unit-banner-image
unit-banner-image
unit-banner-image

Contact sales center

Get additional information including price lists and floor plans.