hero-image-0

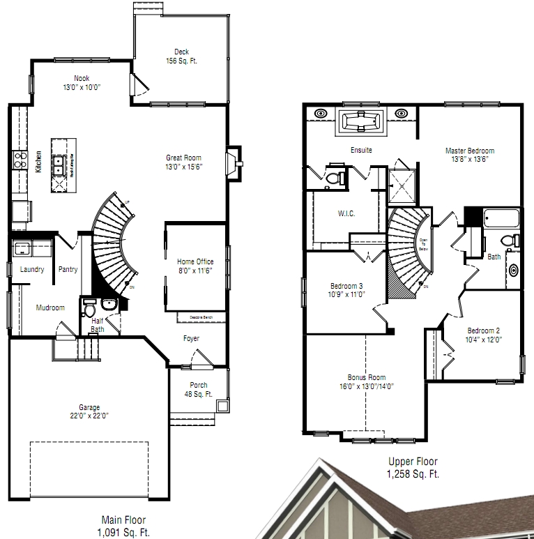
Napoli 2 Plan

Aspen Hills by Albi Homes
Sold
Sold
3
From 2,349
unit-banner-imageunit-banner-imageunit-banner-image
Napoli 2 Plan details
Napoli 2 Plan is now sold.
Check out available nearby plans below.