FEATURED
Hampton End
Cityscape by Mattamy Homes
Cityscape, Calgary
Windsor Corner
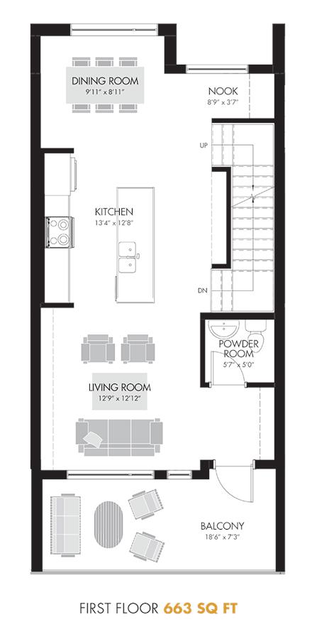
D1.1
Redstone SQR Townhomes
Redstone, Calgary
George
Keystone Creek - Street Townhomes
Keystone Hills, Calgary
The Sasha
Savanna Townhomes
Saddle Ridge, Calgary
The Finley
D2.1
Charlotte