hero-image-0

219

By

Landmark Homes

   |   

Artis

Artis
Sold
Sold
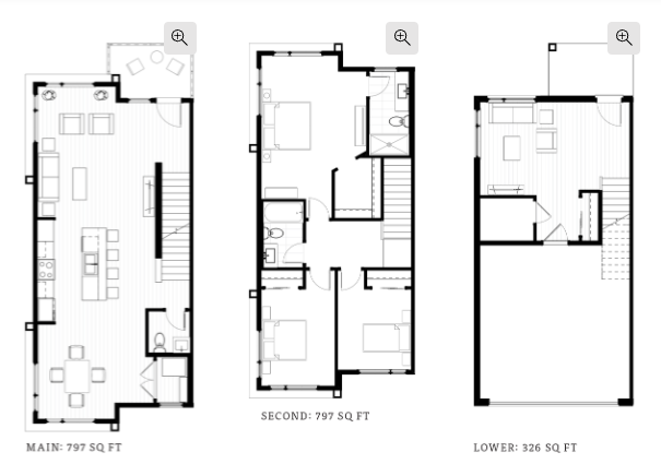
3
2
1
1,659
219 details
unit-banner-image
unit-banner-image
unit-banner-image
219 is now sold.
Check out available nearby townhomes below.