hero-image-0

Amara 2 Plan

By

Landmark Homes

   |   

Artis

Artis
Sold
Sold
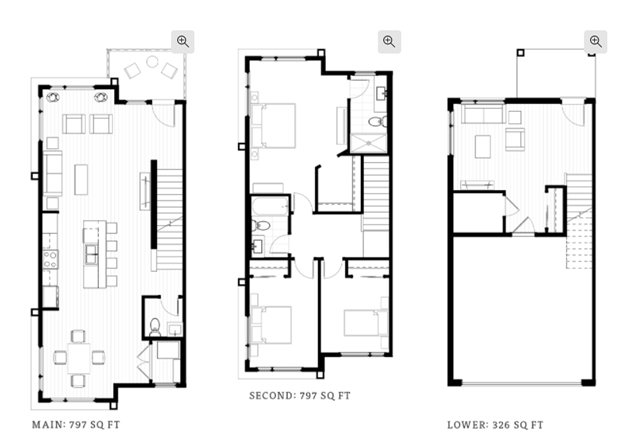
3
2
1
From 1,539
unit-banner-imageunit-banner-imageunit-banner-image
Amara 2 Plan details
Amara 2 Plan is now sold.
Check out available nearby plans below.