hero-image-0

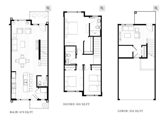
306 Plan

By

Landmark Homes

   |   

Artis

Artis
Sold
Sold
3
2
1
From 1,636
unit-banner-imageunit-banner-imageunit-banner-image
306 Plan details
306 Plan is now sold.
Check out available nearby plans below.