hero-image-0
hero-image-1
hero-image-2

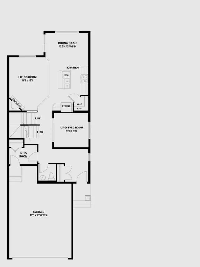
Sovanna Plan

By

Shane Homes

   |   

Ambleton

Ambleton
Not Available
Not available
Pricing unavailable
2
3 - 4
2 - 3
1
From 2,168
Sovanna Plan details

Contact sales center

Get additional information including price lists and floor plans.

Interested? Receive updates

Stay informed with Livabl updates on new community details and available inventory.