


















Get additional information including price lists and floor plans.
Images coming soon
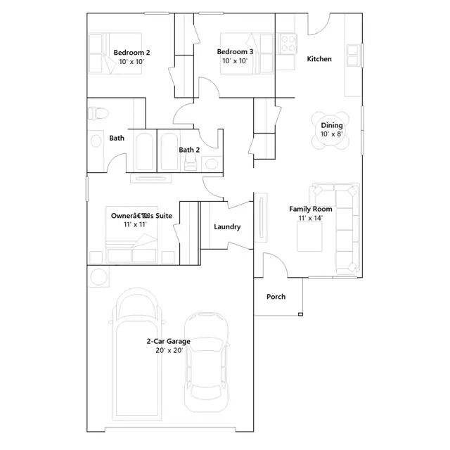
This new single-story home features a low-maintenance and modern design. An open-concept layout combines the kitchen, living and dining areas to maximize interior space, with a nearby patio for simple indoor-outdoor living. Three bedrooms are tucked away to the side of the home for optimal comfort and privacy, including the luxe owners suite with a full bathroom.
Stay informed with Livabl updates on new community details and available inventory.