











































































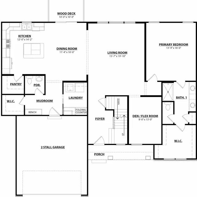
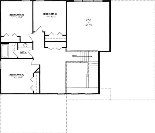
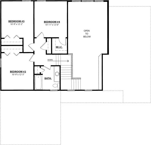
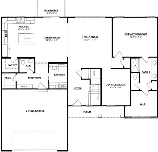
Sycamore House Plan Charming two-story craftsman home with spacious two-story great room, large kitchen hosts an island with snack ledge and useful walk-in pantry. The exceptional main-floor primary suite includes a huge walk-in closet and private bath complete with secluded water closet and linen closet. The mud room provides plenty of storage with a closet and bench & locker system, while the 2nd floor is rounded out by 3 large bedrooms and a second full bathroom. Please note, we have recently released NEW designs for the Sycamore, which you'll see in the brochure and elevations here! While the NEW is "under construction" some images and video on our website will reflect previous design until the NEW are photo ready.
Stay informed with Livabl updates on new community details and available inventory.