hero-image-0
hero-image-1

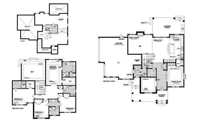
Windmill A Plan

Osprey Mills
For sale
For sale
Last listed from $2,741,900
2
4
3 - 4
1
1
From 3,252
unit-banner-imageunit-banner-imageunit-banner-image
Windmill A Plan details

Contact sales center

Get additional information including price lists and floor plans.

Available homes

Interested? Receive updates

Stay informed with Livabl updates on new community details and available inventory.