MC30-2C - Elev. A
Mayfield Collection
Rural Caledon, Caledon
MC30-1 - Elev. A
MC30-3 - Elev. D
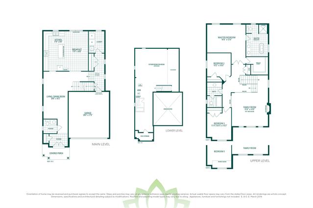
The Aster - Elev. A
Honeystone - Single Family Homes
Northwest Brampton, Brampton
MC30-3 - Elev. C
The Aster - Elev. C
MC30-2C - Elev. B
MC30-1 - Elev. D