













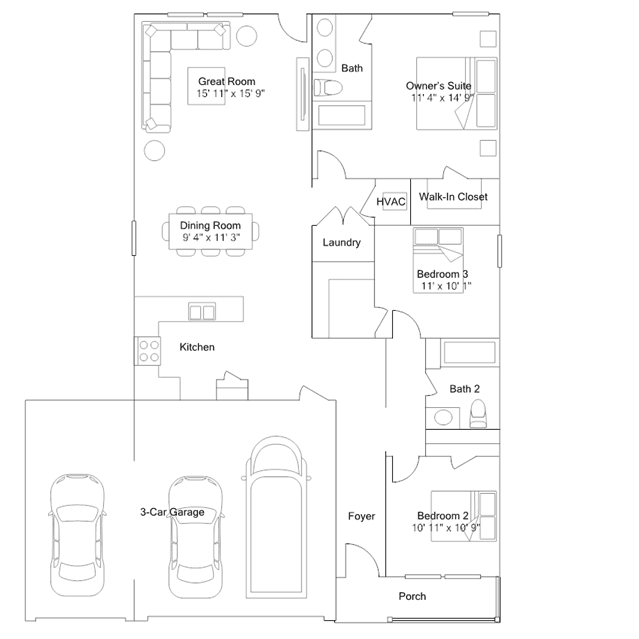
This single-story home has everything a modern family needs with three bedrooms in total, including the owners suite. The two secondary bedrooms are at the front of the home and share a hall bathroom, while the open concept living area includes a family room, dining room and kitchen, all in one area.