























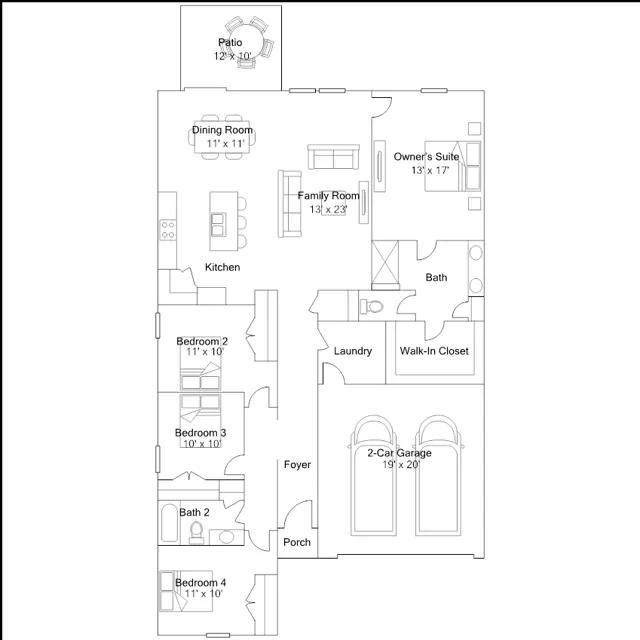
This single-story home features an open space layout in the kitchen, family room and dining room that extends to the patio for outdoor living. Near the foyer are three bedrooms and a full-sized bathroom, while the owners suite with an attached bathroom is tucked away from the rest for extra privacy. Rounding out the layout is a convenient two-car garage.
Stay informed with Livabl updates on new community details and available inventory.