




























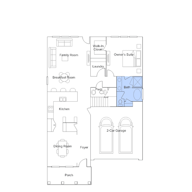
This spacious two-story home features a formal dining room and an open concept living area for easy everyday living on the first floor. Also on the first floor is the owners suite, situated away from the rest of the bedrooms for maximum privacy. Upstairs are four bedrooms, including a spacious guest suite that can be turned into another common area.