New Homes for Sale
Articles
Professionals
Log in
Sign up
Photos 2
Videos 0
Map
Interactive floor plan 0
Virtual 0
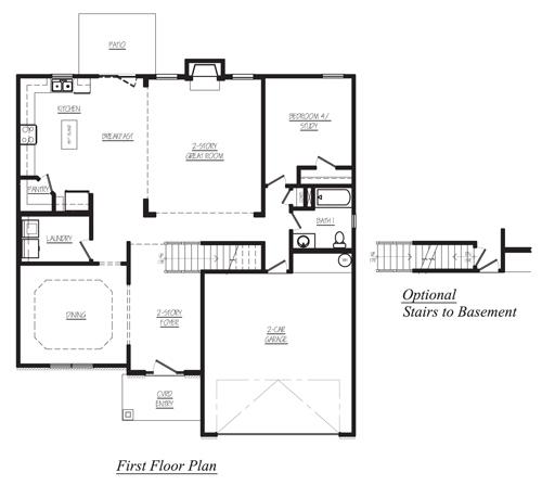
Brookwood Plan
By
D.R. Horton
|
Meadows Walk
Community
Available homes
Get updates
Save
Request info
Request info
Community
Available homes
Request info
Get updates
Save
Request info
Meadows Walk
Get updates
Request info
Sold
Sold
4
3
From 2,634
Brookwood Plan details
Address:
Byron, GA 31008
Plan type:
Detached Two+ Story
Beds:
4
Full baths:
3
SqFt:
From 2,634
Ownership:
Fee simple
Interior size:
From 2,634 SqFt
Lot pricing included:
Yes
Brookwood Plan is now sold.