hero-image-0

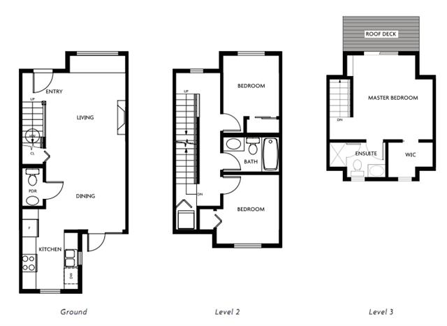
Unit C Plan

By

Listraor

   |   

Westridge Living

Westridge Living
Sold
Sold
3
3
From 1,094
unit-banner-imageunit-banner-imageunit-banner-image
Unit C Plan details
Unit C Plan is now sold.
Check out available nearby plans below.