hero-image-0
Vantage
Sold
Sold
2
From 905
unit-banner-imageunit-banner-imageunit-banner-image
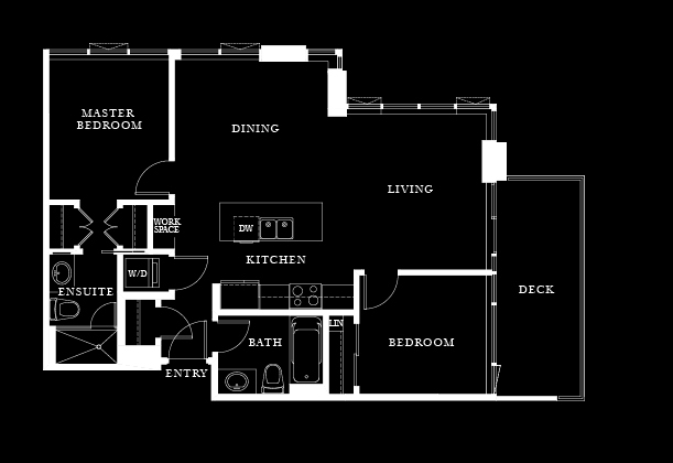
C Plan details
C Plan is now sold.
Check out available nearby plans below.