hero-image-0
The Park Metrotown
Sold
Sold
1
1
From 490
unit-banner-imageunit-banner-imageunit-banner-image
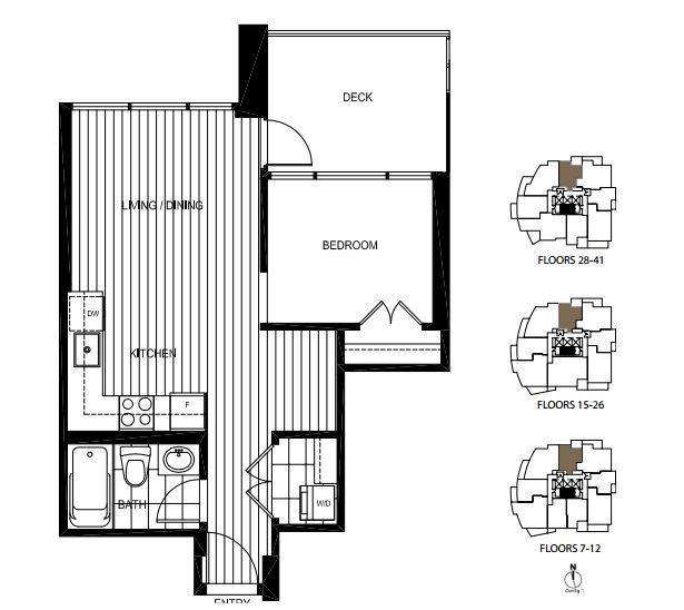
B1 Plan details
B1 Plan is now sold.
Check out available nearby plans below.