hero-image-0

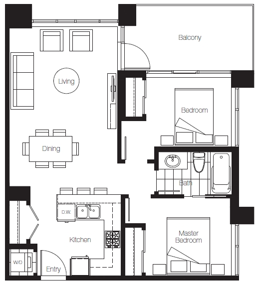
Suite A1 Plan

Sovereign by Bosa Properties
Sold
Sold
2
From 868
unit-banner-imageunit-banner-imageunit-banner-image
Suite A1 Plan details
Suite A1 Plan is now sold.
Check out available nearby plans below.