hero-image-0

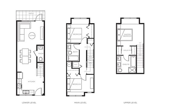
K2 Plan

Savile Row
Sold
Sold
3
2
1
From 1,181
unit-banner-imageunit-banner-imageunit-banner-image
K2 Plan details
K2 Plan is now sold.
Check out available nearby plans below.