hero-image-0

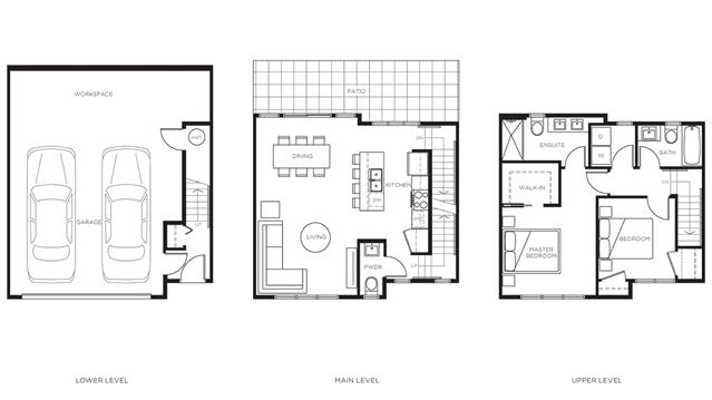
F Plan

Savile Row
Sold
Sold
2
2
1
From 1,160
unit-banner-imageunit-banner-imageunit-banner-image
F Plan details
F Plan is now sold.
Check out available nearby plans below.