FEATURED
B2a
Ashleigh Oakridge
South Cambie, Vancouver
PH B4
B1
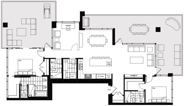
Plan PH5
Alina
Coquitlam West, Coquitlam
Plan PH6
Plan PH7
Plan D2
Plan PH8
37-storey Modello high-rise brings luxury-living to Burnaby
Scheduled for completion in 2016, the homes are already 60 per cent sold out.