hero-image-0

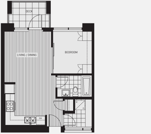
Flat 1A Plan

By

Intracorp

   |   

Metroplace

Metroplace
Sold
Sold
1
From 505
unit-banner-imageunit-banner-imageunit-banner-image
Flat 1A Plan details
Flat 1A Plan is now sold.
Check out available nearby plans below.