hero-image-0

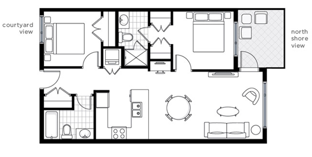
Two Bedroom Plan

By

Thind

   |   

Metro One Condos

Metro One Condos
Sold
Sold
2
2
unit-banner-imageunit-banner-imageunit-banner-image
Two Bedroom Plan details
Two Bedroom Plan is now sold.
Check out available nearby plans below.