hero-image-0

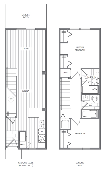
H3 Plan

METRO. BY MOSAIC.
Sold
Sold
2
From 986
unit-banner-imageunit-banner-imageunit-banner-image
H3 Plan details
H3 Plan is now sold.
Check out available nearby plans below.