hero-image-0

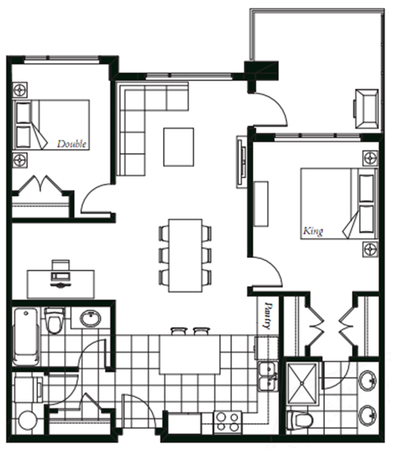
409 Plan

Firma by Boffo
Sold
Sold
2
1
From 1,084
unit-banner-imageunit-banner-imageunit-banner-image
409 Plan details
409 Plan is now sold.
Check out available nearby plans below.