hero-image-0

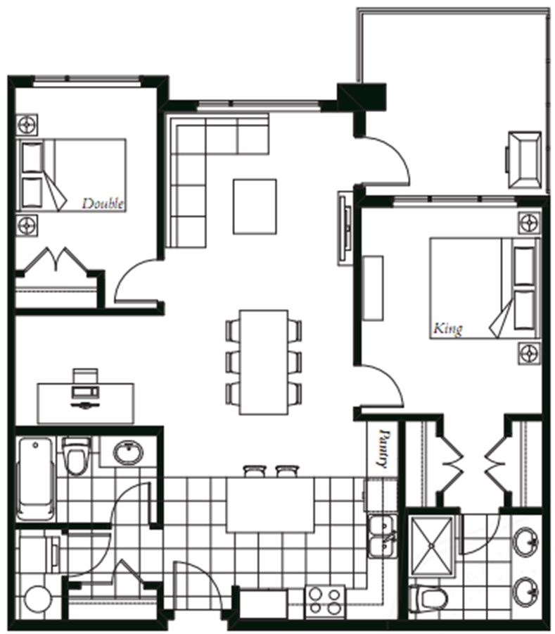
403 Plan

Firma by Boffo
Sold
Sold
2
1
From 1,081
unit-banner-imageunit-banner-imageunit-banner-image
403 Plan details
403 Plan is now sold.
Check out available nearby plans below.