Fairfield
Bellerose
Gibsonville
Pelham
Pendleton
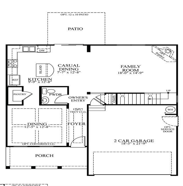
Cooper 3
Wynwood
Cooper
Wexford
Elon
Aberdeen
The Estates at Edinborough
Winston