































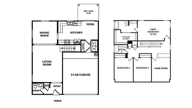
The Tyler is a two-story, 1956 square foot, three bedroom, 2.5 bathroom, 2-car garage home designed with you in mind. The inviting entrway opens to a powder bathroom and leads into the spacious family room. The family room leads into a formal dining room, perfect for entertaining. The kitchen is located off the dining room and features granite countertops, stainless steel appliances, gas cooking range, classic white subway tile backsplash, and a spacious pantry. A nice breakfast nook as well as the utility room are located off the kitchen. The second story includes the private main bedroom suite, two secondary bedrooms, a full bathroom, versatile loft and linen storage space. The large secluded main bedroom & ensuite features ceramic tile flooring, walk-in shower, garden tub, dual vanities, and walk-in closet. Other features include 2-inch faux wood bli...