





















































































































Get additional information including price lists and floor plans.
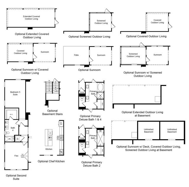
The Sumner plan is fully equipped with flexible options to fit your needs. This home features 5 bedrooms, 4.5 bathrooms, study, flex & loft. Enter the Sumner into the foyer and you will find a flex room and private study. Continue into the home and be greeted by a spacious great room and kitchen with expansive cabinet space, chef island and pantry. The kitchen casual dining area features windows that provide you great views of your new patio and backyard. The spacious great room has a standard fireplace and optional built-ins that will elevate the room. Upstairs there is a loft area for you to enjoy. Two of the secondary bedrooms open to a connected bathroom, and another secondary bedroom has a private bathroom. The exquisite primary suite features a luxurious bathroom with two sinks, walk-in shower and oversized walk-in closet that you can option to connect ...
Stay informed with Livabl updates on new community details and available inventory.