



























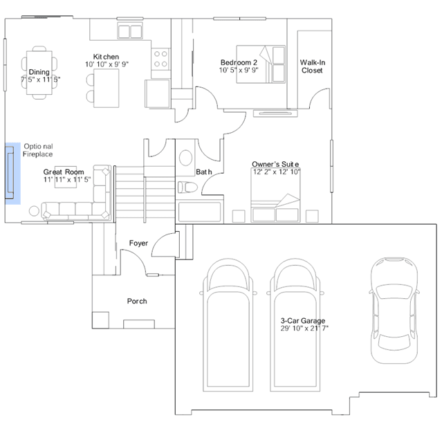
This split-level single-family home makes fantastic use of available space with an open concept layout featuring a modern kitchen with high-end appliances, dining room and spacious Great Room ideal for entertaining. There are two bedrooms on the primary floor, including the luxurious owners suite with a spacious bedroom, en-suite bathroom and walk-in closet.
Stay informed with Livabl updates on new community details and available inventory.