










































Get additional information including price lists and floor plans.
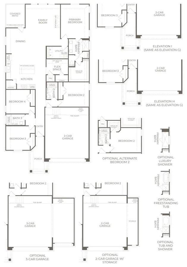
The Alpine Plan offers a smartly designed 4-bedroom, 3-bath layout with a 2-car garage, built for today's modern lifestyle. This single-story home features an open-concept living area flowing into a chef-ready kitchenideal for relaxed family time or weekend entertaining. Well-considered separation between bedrooms offers both communal connection and private retreat space. Outside, a covered porch invites casual outdoor living, while thoughtful design details ensure both beauty and function. Tailored for dynamic families seeking comfort, Chic style, and easy flow in Buda's master-planned Persimmon community.
Stay informed with Livabl updates on new community details and available inventory.