












































































Get additional information including price lists and floor plans.
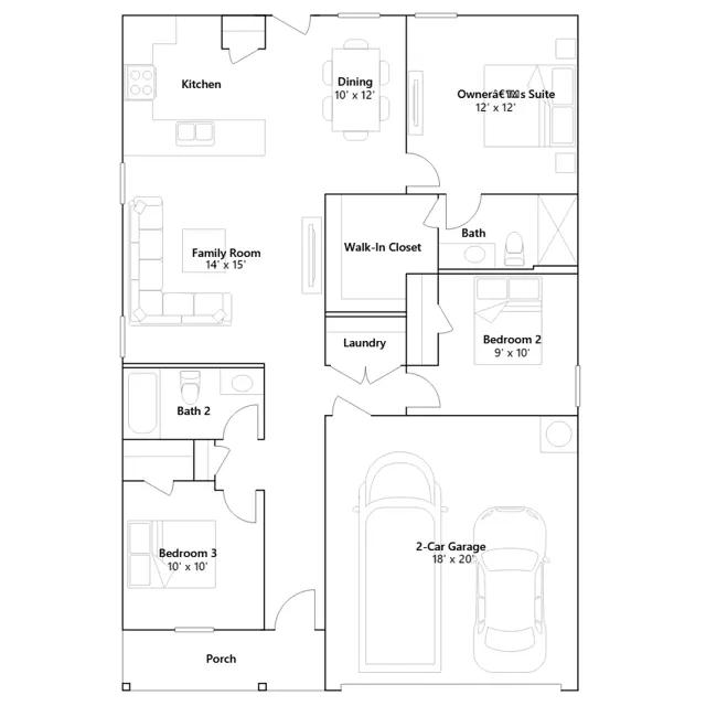
This new single-story home design combines comfort and style. An open-plan layout connects the kitchen, dining area and family room, which features a door providing direct access to the backyard. The owners suite and the two secondary bedrooms are situated on opposite ends of the home for enhanced privacy. Rounding out the layout is a two-car garage to provide convenient storage space.
Stay informed with Livabl updates on new community details and available inventory.