hero-image-0
hero-image-1
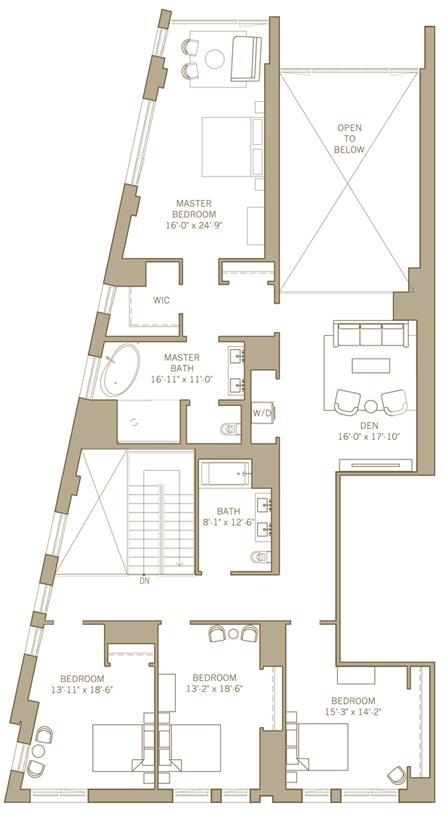
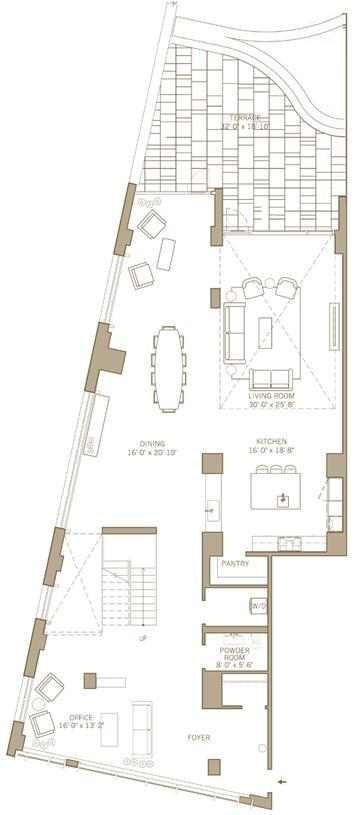
Pierhouse at Brooklyn Bridge P...
Sold
Sold
4
2
1
4,603
S113 details
S113 is now sold.
Check out available nearby condos below.