hero-image-0
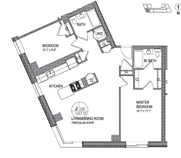
Atlantic Terrace
Sold
Sold
2
2
1,067
4J details
unit-banner-image
unit-banner-image
unit-banner-image
4J is now sold.
Check out available nearby condos below.