5G
49 Chambers
Civic Center, New York
PH32
200 East 59
Midtown East, New York
25C
Greenwich West
Hudson Square, New York
20D
12K
108 Leonard
7G
THE-SOLARIUM
555 West End Avenue
Upper West Side, New York
10C
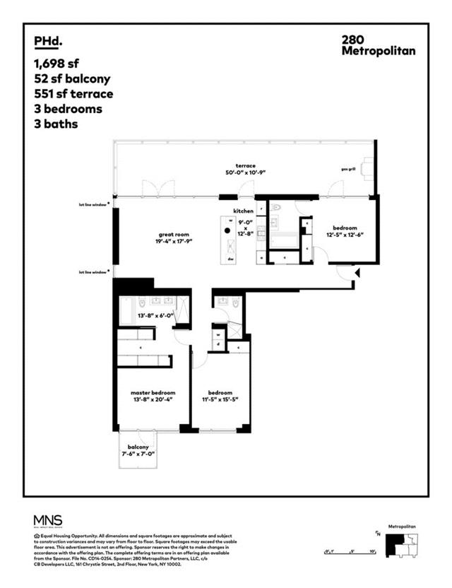
Baby got back yard: Williamsburg’s 280 Metropolitan is all garden-y
Garrison Architects designed the 27-unit building, which will feature balconies with vertical gardens on the south facade.