hero-image-0

1B

By    |   

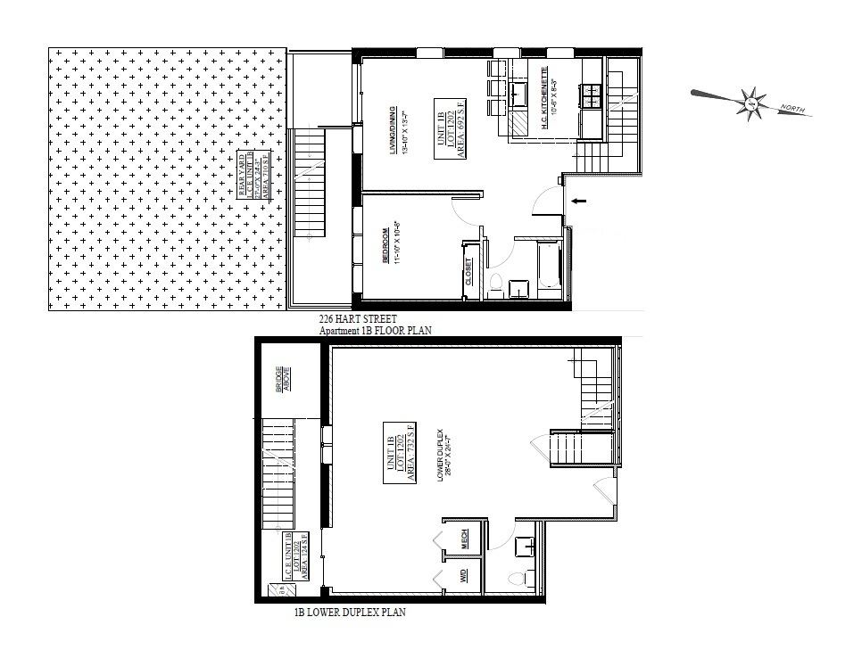
226 Hart Street

226 Hart Street
Sold
Sold
1
1
1
1
1,290
1B details
unit-banner-image
unit-banner-image
unit-banner-image
1B is now sold.
Check out available nearby condos below.