hero-image-0

1L

By    |   

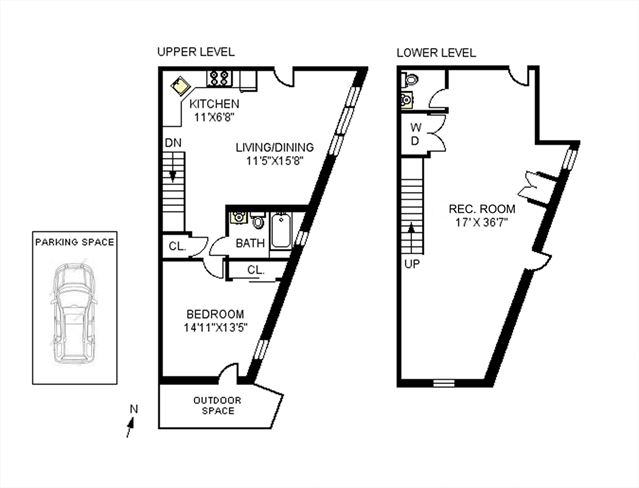
150 East 2nd Street

150 East 2nd Street
Sold
Sold
1
1
1
1,217
1L details
1L is now sold.
Check out available nearby condos below.