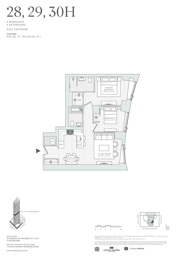
30D
200 East 59
Midtown East, New York
6A
12A
25D
29E
23E
507
547 W 47th St - The West Residence Club
Hell's Kitchen, New York
27E
Stay informed with Livabl updates on new community details and available inventory.
New condo tower that’s shaped like an artichoke coming to Deer Park
A new and highly-anticipated Toronto condo tower with unique architecture is coming soon to the city’s midtown Deer Park neighbourhood.