















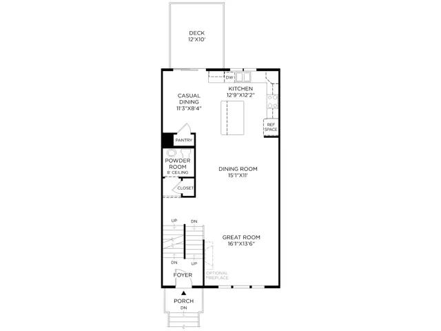
With spacious open-concept living and a quiet bedroom level, the gorgeous Madaket is perfect for entertaining and restful retreats. The soaring two-story foyer and stairs lead to an expansive living level with views to the desirable rear deck. The beautiful great room, dining room, and casual dining area overlook the well-appointed kitchen, offering a large center island with breakfast bar, wraparound counter and cabinet space, and a sizable pantry. On the bedroom level, the impressive primary bedroom suite is defined by an ample walk-in closet and a charming primary bath with a dual-sink vanity and a large luxe shower with seat. The sizable secondary bedrooms are enhanced by vaulted ceilings, roomy closets, and a shared hall bath. Additional highlights include a convenient living-level powder room and lower-level everyday entry, centrally located bedroom-level l...
Stay informed with Livabl updates on new community details and available inventory.